SECLUDED CLOVERDALE ADDRESS

LEAFY EASY-BUILD HOMESITES

Neighbouring Forest Lake

BERKELY GREEN by Estates Co is a premium new neighbourhood, secluded in the privacy of Cloverdale Road Doolandella… minutes from the established convenience of Forest Lake shopping, schools and colleges, parkland and leisure time activities, central for access to all parts of Brisbane via nearby Ipswich Motorway (M7), Centenary Motorway (M5) and Logan Motorway (M2).

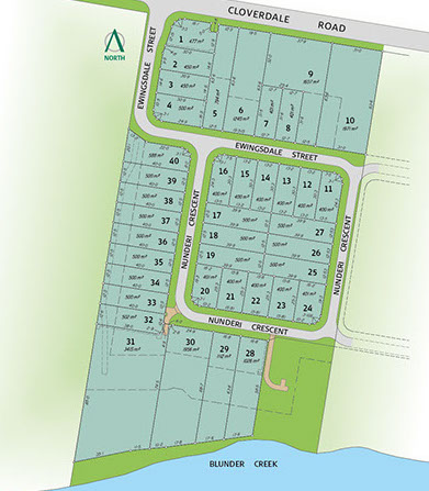
All homesites are benched and retained level for slab construction with an impressive selection of lot size, aspect and outlook.  Select a family favourite and choose your own builder or keep it simple and consider your options from the range of fixed-price house/land packages fully costed and available from our on-site Land Sales Centre.

  • Elevated level lots, 400m² to 5681m².
  • All lots NBN & Natural Gas ready.
  • Handy to Forest Lake Shopping Centre, St. John’s Anglican College, the all-new McDonalds/7 Eleven Convenience Centre and the bikeways, parkland, recreational and Sporting Clubs of the adjoining Forest Lake community.
  • 5 minutes to a choice of highly regarded schools and colleges, Richlands shopping and Park ‘n’ Ride Rail Link, Blunder Road shopping and conveniences.
  •  10 minutes to Oxley shopping, eateries, entertainment and City-Link Rail.
  • 15 minutes to Indooroopilly Shopping Centre, Cinema, Cafes & Restaurants, Calamvale Shopping Centre, Toowong Shopping Village, University of Queensland, Brisbane Boys College.
  •  25 Minutes to Brisbane CBD and International Airport

REGISTER NOW

Drive through Berkely Green, compare our position and consider the value…

Register Now for more information

OR call  anytime on 1300 794 299

to discuss your new home upgrade plans.

Submitting Form...

The server encountered an error.

Form received.

*Mandatory Fields

STAGE 2 SALES PLAN CLICK TO ENLARGE

STAGE 1 SALES PLAN CLICK TO ENLARGE

COMPARE OUR POSITION

CONSIDER THE VALUE

Cloverdale Road, Doolandella, Brisbane

call anytime

1300 794 299

CLICK TO ENLARGE MAP

Cloverdale Road, Doolandella, Brisbane

1300 794 299